Меню
Контакт-центр8(926)522-81-66

Двухэтажная баня Даная 2 (брус клееный)

Даная 2 6.0 x 8.0 84.27 м²
Характеристики
  • Общая площадь: 84.27 м2
  • Площадь застройки: 48.00 м2
  • Размеры: 6.0 x 8.0 м
  • Срок строительства: 20-22 дней

Выберите технологию

Выберите комплектацию

3779800 руб.
4395800 руб.
Цена
3 779 800 руб.
Цены в вашем регионе могут отличаться от представленных на сайте

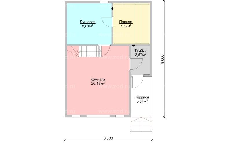
«Даная-2» - двухэтажная баня, которая поражает своей статью. Кровля держится на красивых строганных открытых балках, а широкий карниз придаёт этой «Данае» особый шарм и величие. Предусмотрены террасы разного исполнения, которые способны принципиально изменить её облик. Заказчик может выбрать понравившийся вариант и тем самым самостоятельно определить характер постройки – либо это будет шале, либо баня в традиционном русском стиле. На первом этаже располагаются вместительные парная, душевая, а также светлая комната, с большой площадью остекления. Есть возможность по желанию заказчика оборудовать санузел. На мансардном этаже располагаются ещё две комнаты. Причём мансарда, благодаря конструктивным особенностям, имеет такую же площадь, как и первый этаж, а свободная планировка визуально увеличивает пространство. «Даная-2» проектировалась не только как баня, но и как маленькая «гостиница», где по необходимости можно легко разместить родственников и друзей. Если у Вас хлебосольная семья, то «Даная-2» - безусловно, Ваш выбор!

Характеристики
  • Общая площадь: 84.27 м2
  • Площадь застройки: 48.00 м2
  • Размеры: 6.0 x 8.0 м
  • Срок строительства: 20-22 дней
Базовая
Посмотреть полное описание
Зимняя
Посмотреть полное описание
Фундамент Монолитный железобетонный фундамент Фундамент в подарок Свайно-винтовой на глубину промерзания
Полы и перекрытия Пол 1 этажа представляет собой многослойную конструкцию 190 мм. Утепление 50 мм. Настил пола - доска 21 мм.Пол 2 этажа представляет собой многослойную конструкцию 178 мм. Утепление 50 мм. Настил пола - доска 21 мм. Полы и перекрытия Пол 1 этажа представляет собой усиленную многослойную конструкцию 205 мм. Утепление 150 мм. Настил пола - доска 35 мм. Конструкция пола обработана огнебиозащитой. Пол 2 этажа представляет собой многослойную конструкцию 178 мм. Утепление 50 мм. Настил пола - доска 21 мм.
Стены Клееный брус 150 мм Стены Клееный брус - 150 мм, обработаны бесцветным биозащитным составом, подняты на один венец
Парная Стены и потолок обшиты осиновой вагонкой Парная Стены и потолок обшиты осиновой вагонкой, полки с настилом из осины, дверь стеклянная
Потолки Потолки отделаны вагонкой, утепление 50 мм, утепление в парной 150 мм Потолки 1 этаж утепление - 50 мм., парная утепление - 150 мм., 2 этаж утепление - 150 мм
Кровля Металлическая оцинкованная Кровля Металлическая оцинкованная, гидроизоляция подкровельного пространства
Окна Пластиковые однокамерные Окна Пластиковые однокамерные
Двери Деревянные Двери Деревянные
3 779 800 руб.
4 395 800 руб.
При строительстве бани в комплектации "Зимняя", вы получаете свайно-винтовой фундамент и печь в подарок!

Более подробную информацию Вы можете уточнить у менеджеров по телефону +7 (495) 737-07-07 или на выставочных площадках.


Акция не распространяется на бани 3х4 м и 4х4 м..

Характеристики
  • Общая площадь: 84.27 м2
  • Площадь застройки: 48.00 м2
  • Размеры: 6.0 x 8.0 м
  • Срок строительства: 20-22 дней

Выберите технологию

Выберите комплектацию

Цена
3 779 800 руб.
Цены в вашем регионе могут отличаться от представленных на сайте

Отзывы о банях

Нина, "Балчуг" 19 Мая 2023
Спасибо Суховой Светлане Львове за помощь в выборе и строительстве дома и бани. А также за доброе и внимательно отношение к своим клиентам. Так же большое спасибо строительной бригаде за быструю и качественную работу
Вячеслав, строительство бани 29 Июля 2015
Постройкой бани доволен.Парная отличная!!! Спасибо «Зодчий»
Моисеев Александр, баня брус 10 Августа 2015
Баня построена в марте 2015г. Бригады по фундаменту и по строительству сделали все в срок, качественно.Все понравилось.Нареканий нет. Буду рекомендовать фирму «Зодчий» своим знакомым. Баня бк-150
Обратный звонок
* заполните обязательно