Меню
Контакт-центр8(926)522-81-66

Канадец 2

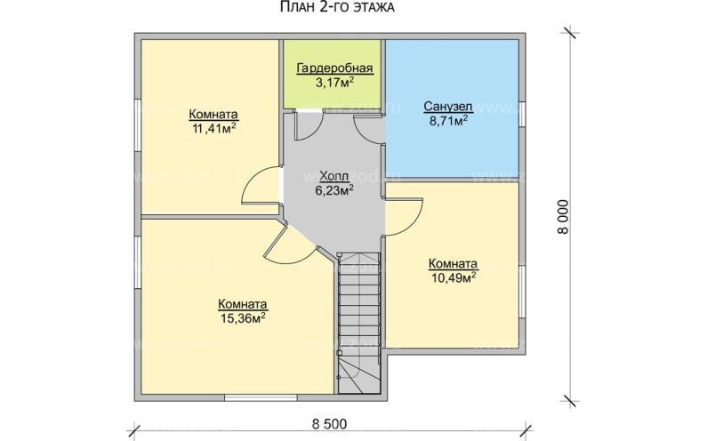
Канадец 2 8.0 x 8.5 116.67 м²
Характеристики
  • Общая площадь: 116.67 м2
  • Жилая площадь: 61.91 м2
  • Площадь застройки: 69.59 м2
  • Размеры: 8.0 x 8.5 м
  • Срок строительства: 45-55 дней
  • 2
    Санузла
  • 3
    Спальни

Выберите технологию

Выберите комплектацию

6469800 руб.
6969800 руб.
Цена
6 469 800 руб.
Цены в вашем регионе могут отличаться от представленных на сайте

В этом доме предусмотрено максимум удобств для жизни его будущих владельцев. Просторная общая зона, связанная студийной планировкой, удобна для проведения досуга в кругу семьи и приема гостей. В то же время у каждого домочадца есть возможность уединиться в своей изолированной от остальных комнате. Комплектация дома оптимальная для семьи из 4-5 человек, – как говорится, ни убавить, ни прибавить. 

Характеристики
  • Общая площадь: 116.67 м2
  • Жилая площадь: 61.91 м2
  • Площадь застройки: 69.59 м2
  • Размеры: 8.0 x 8.5 м
  • Срок строительства: 45-55 дней
4 сезона

Добавить инженерный пакет

4 сезона +

Добавить инженерный пакет

Фундамент в подарок Свайно-винтовой на глубину промерзания Фундамент в подарок Свайный забивной железобетонный ниже глубины промерзания
Пол 1-го этажа Настил пола - 24 мм. Утепление - 150 мм Пол 1-го этажа Доска - 35 мм. Утепление - 150 мм
Стены 1-го этажа клееный брус сечением 146х142 мм. Покрытие биозащитным составом Стены 1-го этажа клееный брус сечением 146х142 мм. Покрытие биозащитным составом
Пол 2-го этажа Доска - 21 мм, Утепление - 50 мм Пол 2-го этажа Доска - 35 мм, Утепление - 100 мм
Стены 2-го этажа Утепление - 150 мм Стены 2-го этажа Утепление - 150 мм
Кровля Профлист C-20 (оцинкованный) Кровля Металлочерепица.
Окна ПВХ с двухкамерным стеклопакетом Окна ПВХ с двухкамерным стеклопакетом
Двери Деревянные, глухие Двери Внутренние - деревянные, глухие. Входная - металлическая усиленная.
Обработка огнебиозащитой для дерева в 2 слоя Обработка огнебиозащитой для дерева в 2 слоя
Скидки на дополнительные опции 5% Скидки на дополнительные опции 10%
6 469 800 руб.
6 969 800 руб.
При строительстве дома в комплектациях "Теплый дом+", "Аляска", "4 сезона", "4 сезона+" и "Зимняя" вы получаете фундамент в подарок!
Более подробную информацию уточняйте у менеджеров по телефону +7 495 445-90-85 или на наших выставочных площадках.
Характеристики
  • Общая площадь: 116.67 м2
  • Жилая площадь: 61.91 м2
  • Площадь застройки: 69.59 м2
  • Размеры: 8.0 x 8.5 м
  • Срок строительства: 45-55 дней
  • 2
    Санузла
  • 3
    Спальни

Выберите технологию

Выберите комплектацию

Цена
6 469 800 руб.
Цены в вашем регионе могут отличаться от представленных на сайте

Отзывы о коттеджах

Елена, дом "Уэльс" 12 Мая 2023
Хочу выразить свою благодарность от нашей семьи менеджеру Суховой Светлане Львовне, в 2021 году мы обратились в «Зодчий» . 
Прошли немало строительных компаний, но Светлана  Львовна сразу расположила к себе профессиональным подходом и очень грамотно подвела нас к определенному проекту, который подходил именно нам. Она смогла нас убедить , что мы построим дом «нашей мечты» именно в «Зодчем». 
Было очень легко решать с ней непростые вопросы, которые мы бы не смогли решить самостоятельно. 
Уже почти два года мы живем в нашем доме. И даже по истечении этого времени , я могу позвонить и проконсультироваться в интересующих меня вопросах, всегда приветлива и со знаем своего дела ответит на все мои вопросы. 
Спасибо за наш дом. 
Хочу также отметить  архитектора  Поверину Надежду  Владимировну- профессионал своего дела. Огромное спасибо ей в участии нашего  проекта.
Нина, "Балчуг" 19 Мая 2023
Спасибо Суховой Светлане Львове за помощь в выборе и строительстве дома и бани. А также за доброе и внимательно отношение к своим клиентам. Так же большое спасибо строительной бригаде за быструю и качественную работу
Гражданин М., зимний дом Велес 30 Июля 2015
По результатам проживания в осеннее-зимнее время, дом показал себя с наилучшей стороны по энергосбережению,практически при низких температурах не требует значительных энергоресурсов,эксплуатация дешевле 2-х комнатной квартиры, что не столь важно в нынешнее время.Собран дом качественно и быстро, что за 1 год эксплуатации подтвердилось на 100%! Спасибо!
Обратный звонок
* заполните обязательно